
Your Bridge to Texas Commercial Real Estate
Helping South Korean companies establish and develop commercial properties in Central Texas
Our Services
Comprehensive services for commercial real estate development in the Austin area
Property Development
End-to-end project management from planning to completion
Market Entry
Strategic consulting for Austin market entry
Legal Advisory
Real estate legal and regulatory guidance
Cultural Bridge
Bridging Korean-American business cultures
Why Austin for Korean Business
Tech Hub
Second largest tech hub after Silicon Valley
Business Friendly
Low taxes and business-friendly regulations
Korean Community
Fast-growing Korean business network
Strategic Location
Central location for logistics and distribution
Incentive Programs
Tax breaks and support programs for businesses
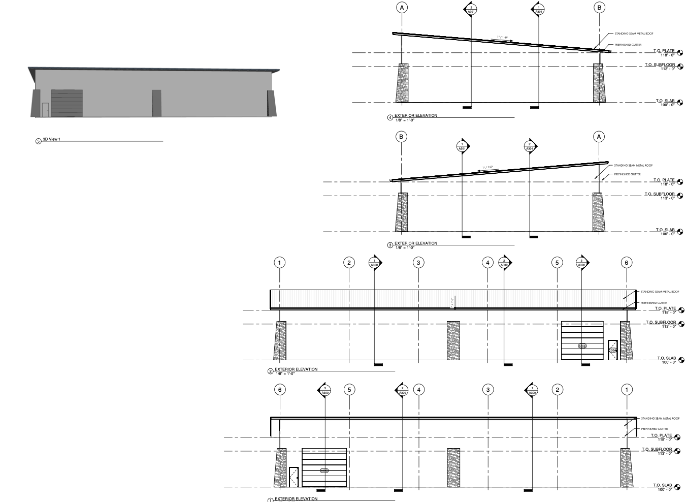
Featured Project

Hutto Warehouse Development
9,000 SF industrial warehouse currently under development in Hutto, TX.
- Flexible industrial space
- Best-in-class technology
- Completed Q3 2025
Trusted by Partners



